Restructuration d'un bâtiment industriel existant en cuisine centrale
Restructuration d'un bâtiment industriel existant en cuisine centrale

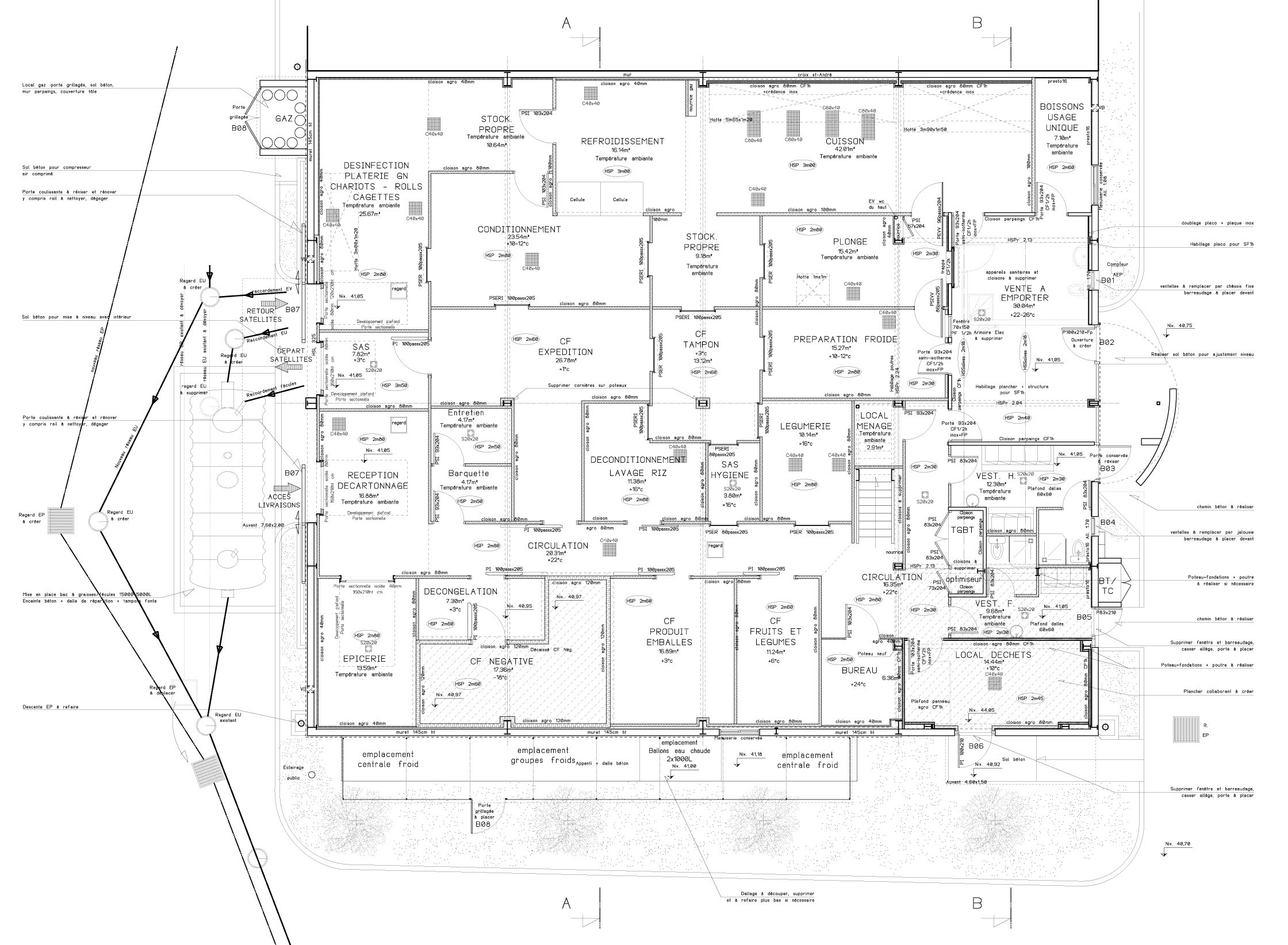
Le projet consiste à l'aménagement intérieur d'un bâtiment industriel situé dans la PAE La Mare. Il sera également aménagé un espace extérieur de 167m², situé tout proche du bâtiment et appartenant au client, pour accueillir une citerne gaz, 2 containers 20 pieds, et un espace de stockage des poubelles et d'un véhicule. Cette zone sera simplement sécurisée à l'aide d'un grillage et d'un portail.
- L’ensemble des existants du bâtiment sera conservé et rénové en termes de solidité. Le local est aménagé pour le fonctionnement d'une cuisine centrale. Les normes en vigueur sont respectées. Une petite partie d'environ 30m² est dédiée à la vente à emporter. La couverture ne sera pas modifiée car elle reçoit une centrale photovoltaïque.
Les accès existants sont conservés, et sont complétés par 3 entrées.
Un poste Transfo HT privé a été prévu pour répondre aux besoins spécifiques de cette cuisine
Montant des travaux (H.T.) :
1 400 000
Surface :
550m² existants
Date :
2014-2015
Lieu :
Sainte-Marie La Mare











Yvon LAURELUT
Architecte DPLG